Budapest XIV. kerület, Herminamező

Ár:

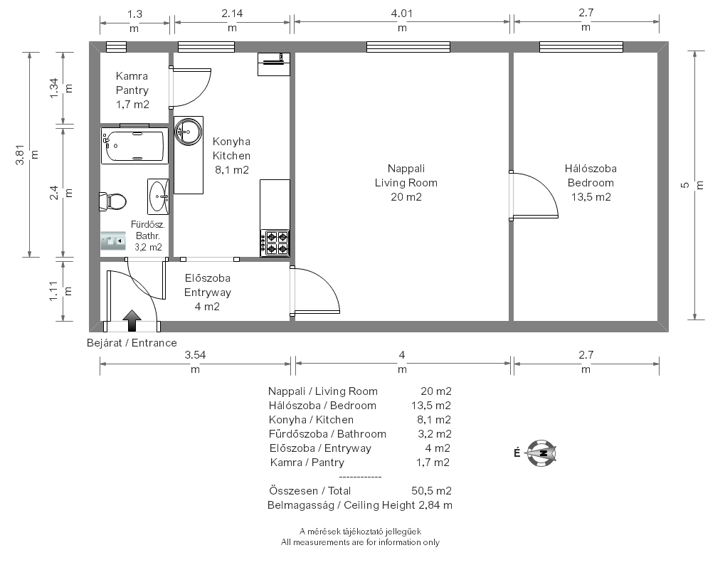
Alapterület: 50 m2

Szobák: 2

Ingatlan állapota: jó állapotú

Építés éve: 1950 előtt

Típus: tégla lakás

Komfort: összkomfortos

Épület szintjei: 4

Lift: nincs

Belmagasság: 3m-nél alacsonyabb

Légkondícionáló: nincs

Akadálymentesített: nem

Fürdő és WC: egy helyiségben

Tájolás: kelet

Kilátás: utcai

Fűtés: cserépkályha, gáz (konvektor)

Kertkapcsolat: nincs

Parkolás: udvari beálló

ELADÓ XIV. kerület Herminamező városrész (Kiszugló és Törökőr) határán egy csendes kis utcában, egy 50 m2-es, 2 szobás (3 szobássá alakítható), szép állapotú földszinti lakás, amihez tartozik egy privát tároló a pincében és bérelhető hozzá a társasház udvarában dedikált parkolóhely. 

A lakás 1/1 tulajdonban van, tehermentes, azonnal költözhető és minden támogatott hitellel finanszírozható – CSOK+ (2 gyermek) / Otthon Start Program.

A lakást 2018-ban újították fel részlegesen: cserélve lettek a nyílászárók (thermo üveges fa ablakok, biztonsági bejárati ajtó), új a villamoshálózat, lámpák, falak festve, glettelve, szobákban laminált padló cserélve – ezek állagát azóta is szépen megőrizték. A fűtésről a konyhában és a kisebbik (háló)szobában 1-1 konvektor, míg a nappaliban egy gázüzemű héra cserépkályha, a használati melegvízről pedig egy villanybojler gondoskodik (éjszakai – kedvezményes tarifás – árammal). A műemlék jellegű, 1910-es években épült (tégla) társasházat kívülről teljesen felújították és a homlokzatot is hőszigetelték (~12 cm) – a modern nyílászárókkal együtt emiatt a fűtés költség (gázfogyasztás) kifejezetten kedvező, átalányban havi 8 000 Ft körül mozog, ráadásul a földszinti fekvés miatt klímára sincs szükség. A falak nem nedvesednek, a privát szféra pedig az ablakok alsó felének fóliázásával abszolút megoldott.

10 perc sétatávon belül egészségház, 3 bölcsőde, 3 óvoda, 2 általános iskola, 2 középiskola, Bosnyák téri piac, boltok, vendéglátóhelyek.

Tömegközlekedés – 5 perc sétatávon belül:
3, 62 és 62A villamos
82-es troli
7, 8E, 108E, 110, 112, 133E buszok
907, 979 éjszakai buszok

Ha kérdése maradt, vagy csak szeretné megtekinteni, várom hívását!

INGATLAN ÉRTÉKESÍTÉS *** HITELÜGYINTÉZÉS *** KÖZMŰÁTÍRÁS