Budapest XIV. kerület, Nagy Lajos király útja 210.

Ár:

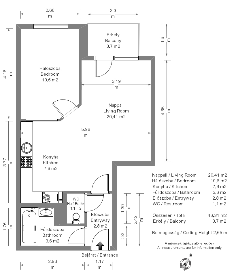
Alapterület: 46 m2

Szobák: 2

Ingatlan állapota: jó állapotú

Építés éve: 2001 és 2010 között

Típus: tégla lakás

Komfort: összkomfortos

Emelet: 1

Épület szintjei: 6

Lift: van

Légkondícionáló: nincs

Akadálymentesített: nem

Fürdő és WC: külön helyiségben

Erkély mérete: 4

Fűtés: házközponti

Kertkapcsolat: nincs

Parkolás: udvari beálló - kötelező megvenni

Eladó egy jó állapotú, 2 szobás, téglaépítésű lakás egy 2004-ben átadott, liftes társasházban, Herminamező határán, a Nagy Lajos király útja és az Erzsébet királyné útja sarkán (nem a Hermina Bau épületében).

Az ingatlan az 1. emeleten található egy 6 szintes, 50 lakásos, L alakú, rendezett társasházban, és csendes, belső udvarra néz. A lakás észak-nyugati tájolású, belmagassága 2,6 m, komfortfokozata összkomfortos. A fürdőszoba és a WC külön helyiségben helyezkedik el, a nappalihoz pedig egy 3,6 m²-es erkély kapcsolódik.

A lakás műszaki állapota jó, komolyabb felújítást nem igényelt, az évek során többszöri festés és mázolás történt, valamint a szobák burkolata cserélve lett. Fűtése házközponti, egyedi mérőórával és féléves elszámolással. Parkolás felszíni beállóval megoldott.

Helyiségek:

Amerikai konyhás nappali: 26,7 m²

Szoba: 11,2 m²

Fürdőszoba: 4,2 m²

WC: 1,2 m²

Előszoba: 2,9 m²

Erkély: 3,6 m²

A lakás előnyei közé tartozik a felszíni parkolóhely, a tágas, étkezős konyha, valamint az alacsony fenntartási költség. Két fő használata mellett a közös költség és a rezsi átlagosan kb. 42.000 Ft/hó, a közös költség fűtéssel együtt körülbelül 30.000 Ft havonta.

A társasház rendezett, stabil anyagi háttérrel rendelkezik, a közös képviselő is az épületben lakik. A környék infrastruktúrája kiváló: villamosok (3, 62, 69), buszok (5, 32, 25), trolik (70, 74, 82), valamint az 1-es villamos és a kisföldalatti is könnyen elérhető.

A közelben, akár „papucsban” is elérhetők a mindennapi szolgáltatások: élelmiszerbolt, pékség, gyógyszertár, virágbolt, papírbolt, mosoda, cipész, posta és delikát üzlet.
Bővebb információkért és a megtekintéssel kapcsolatban keressen bizalommal a megadott elérhetőségek egyikén.